Opis
Więcej szczegółów – zobacz kartę

Zapytaj o mieszkanie
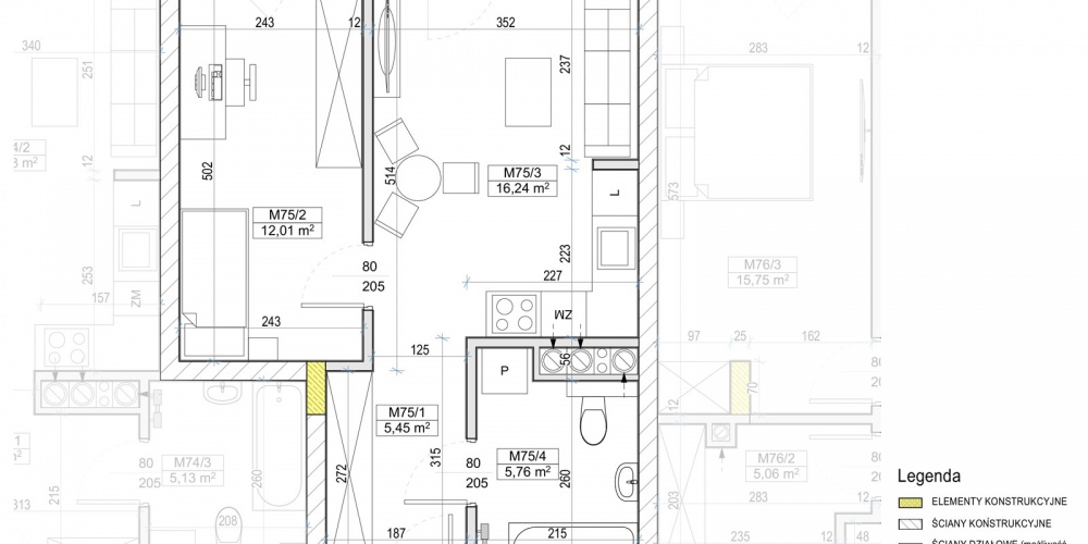
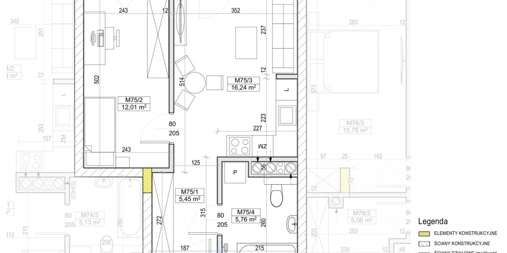
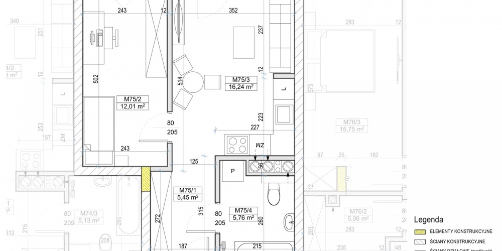
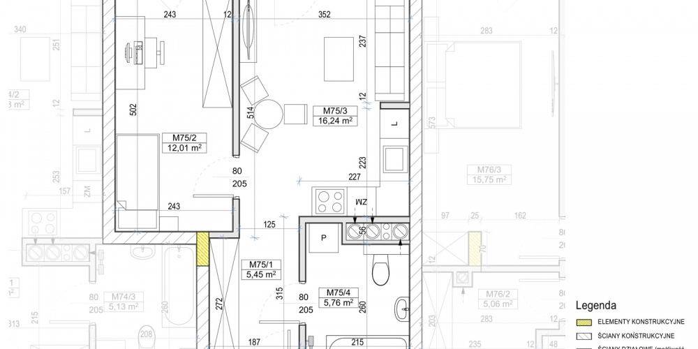
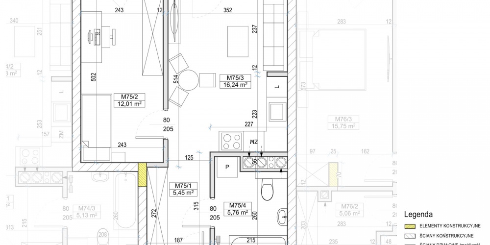
- Komunikacja: 5,45 m²
- ?azienka: 5,76 m²
- Salon + aneks kuchenny: 16,24 m²
- Sypialnia: 12,01 m²
- Balkon: 9,63 m²
Nowa inwestycja we Włoszczowie
Więcej szczegółów – zobacz kartę

Zapytaj o mieszkanie
