Opis
Więcej szczegółów – zobacz kartę
Zapytaj o mieszkanie
- Cena całkowita: 553 066,00 zł
- Cena za m²: 8600 zł
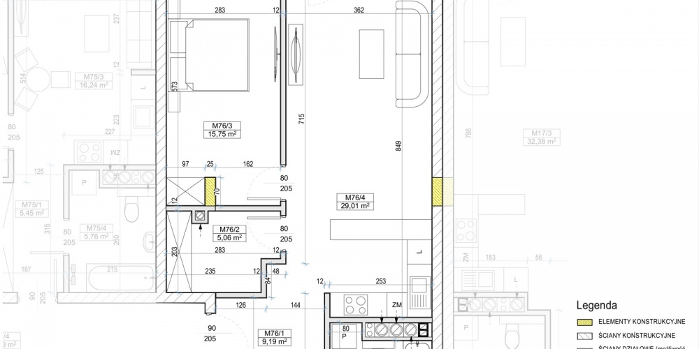
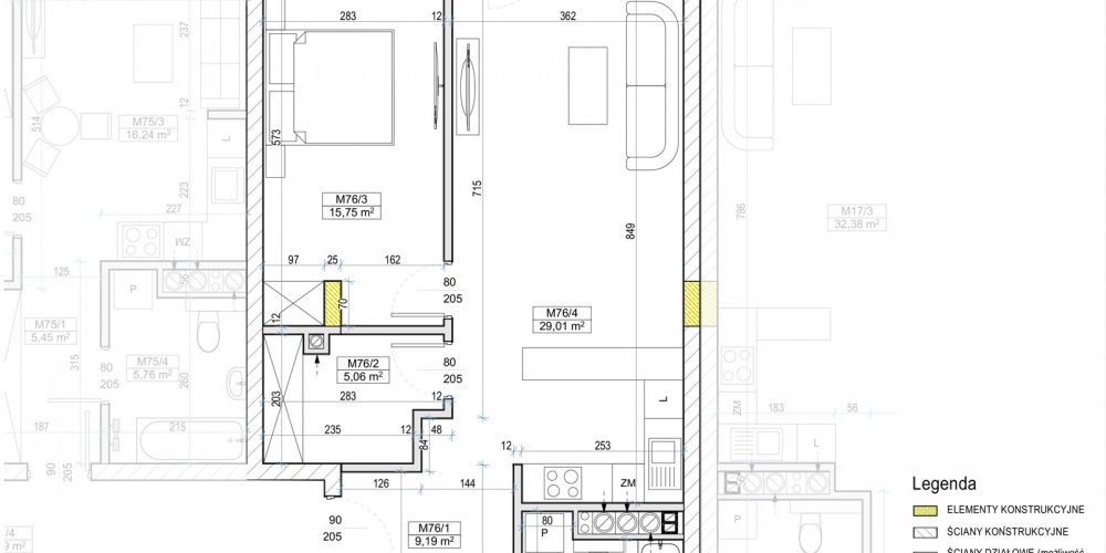
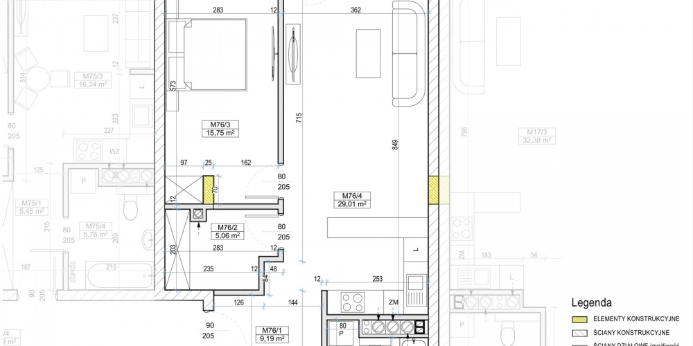
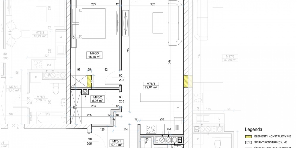
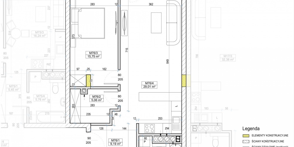
- Komunikacja: 9,19 m²
- ?azienka: 5,20 m²
- Salon + aneks kuchenny: 29,01 m²
- Sypialnia: 15,75 m²
- Pomieszczenie gospodarcze: 5,06 m²
- Balkon: 10,93 m²

