Opis
Więcej szczegółów – zobacz kartę

Zapytaj o mieszkanie
- Cena całkowita: 266 199,00 zł
- Cena za m²: 8900 zł
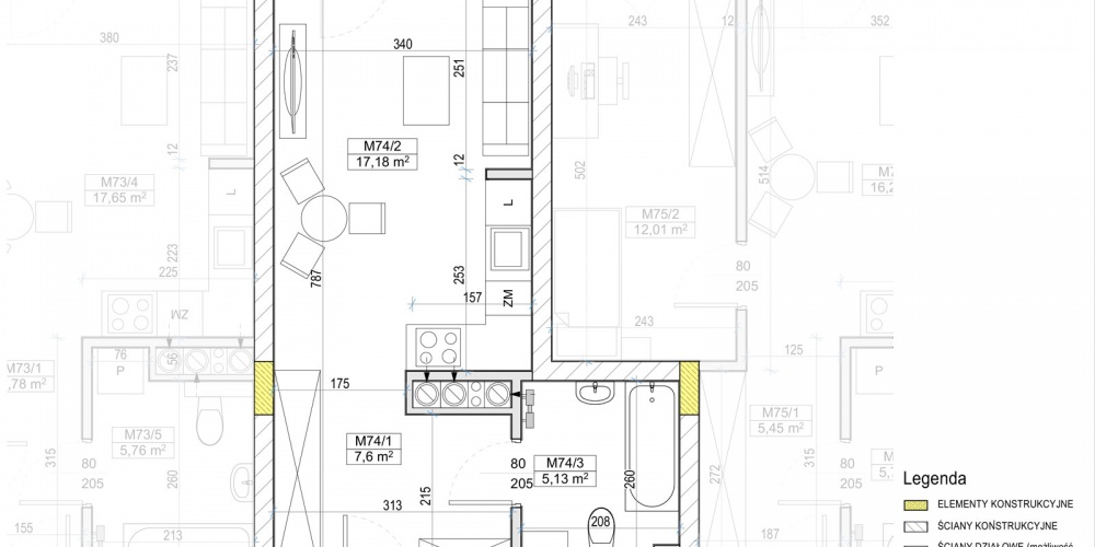
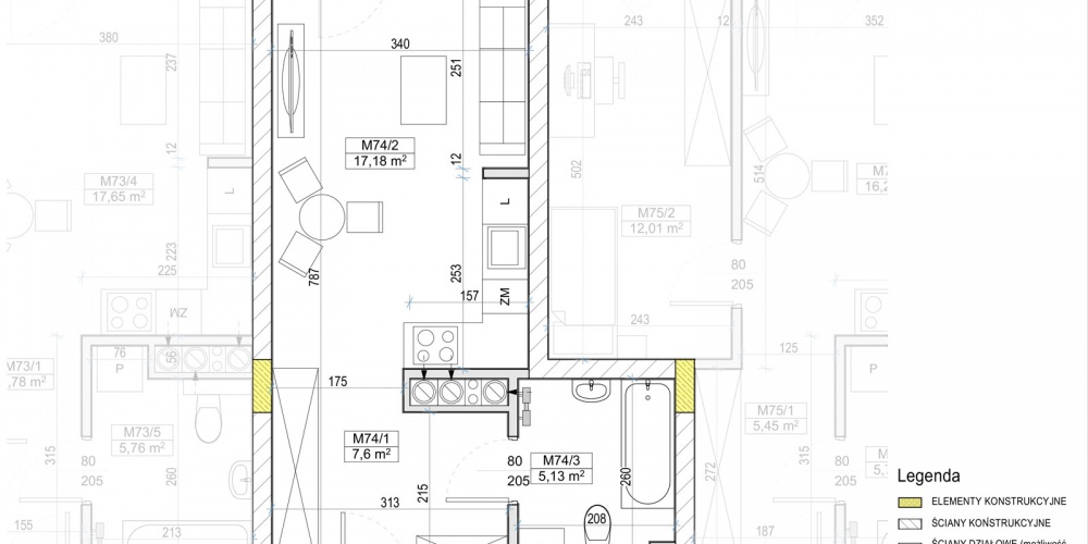
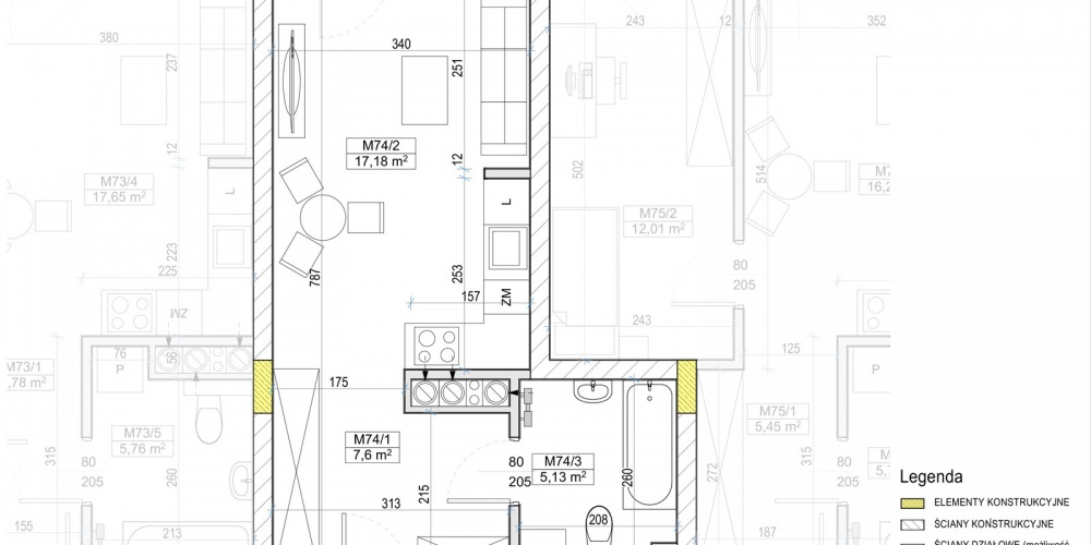
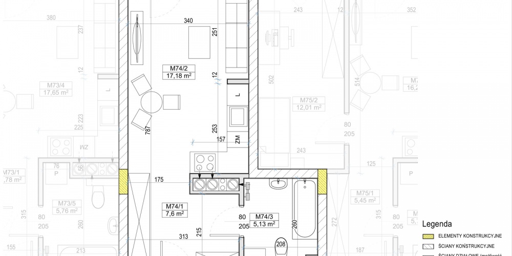
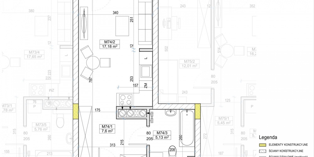
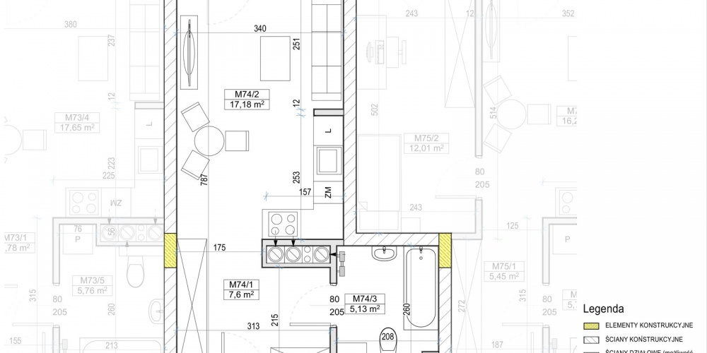
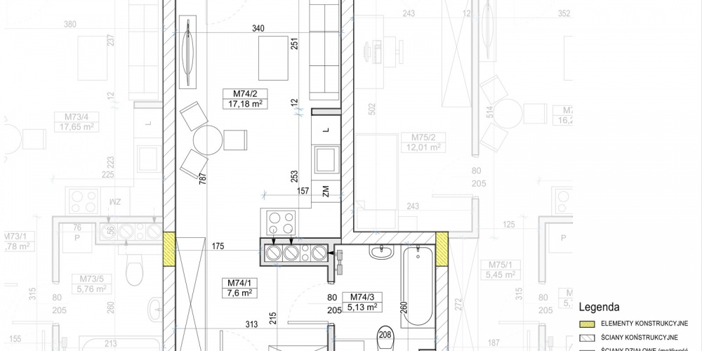
- Komunikacja: 7,60 m²
- ?azienka: 5,13 m²
- Salon + aneks kuchenny: 17,18 m²
- Balkon: 5,71 m²
Nowa inwestycja we Włoszczowie
Więcej szczegółów – zobacz kartę

Zapytaj o mieszkanie
