Opis
Więcej szczegółów – zobacz kartę

Zapytaj o mieszkanie
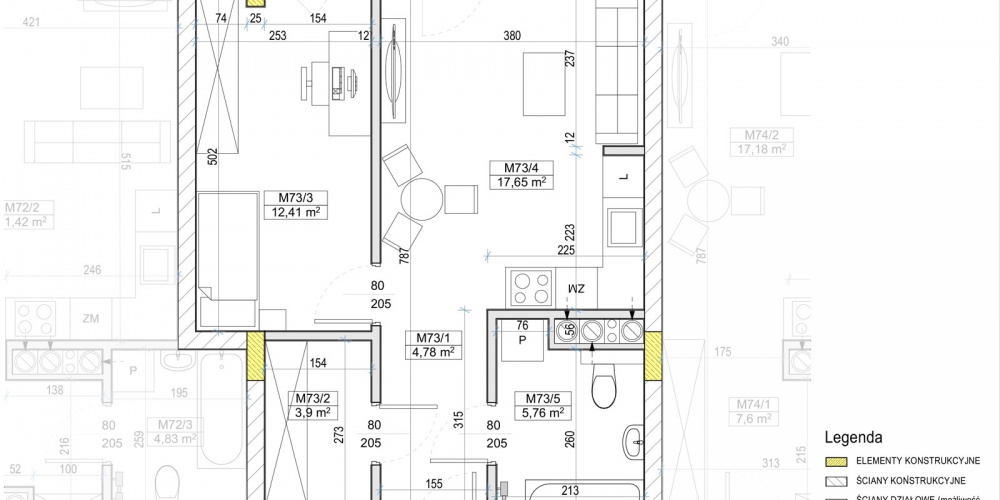
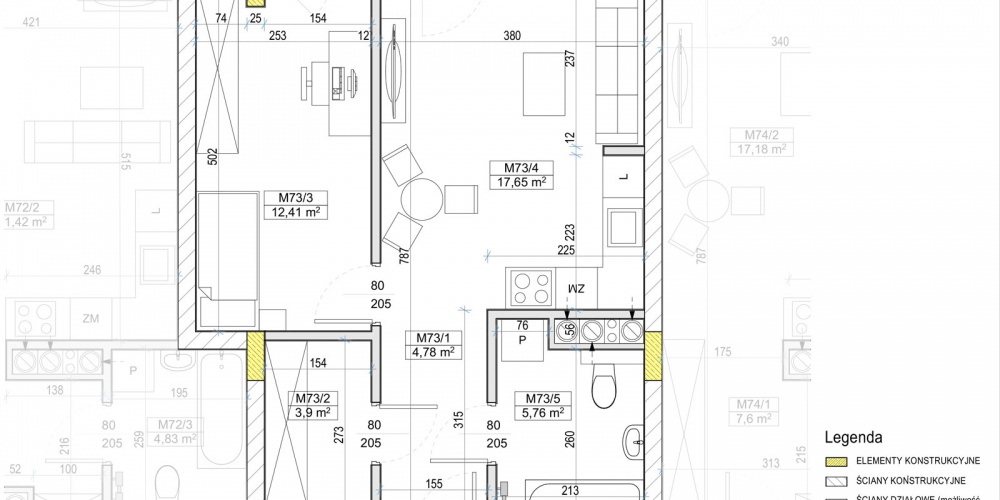
- Komunikacja: 4,78 m²
- ?azienka: 5,76 m²
- Salon + aneks kuchenny: 17,65 m²
- Sypialnia: 12,41 m²
- Pomieszczenie gospodarcze: 3,90 m²
- Balkon: 10,48 m²
Nowa inwestycja we Włoszczowie
Więcej szczegółów – zobacz kartę

Zapytaj o mieszkanie
