Opis
Więcej szczegółów – zobacz kartę

Zapytaj o mieszkanie
- Cena całkowita: 288 186,00 zł
- Cena za m²: 8600 zł
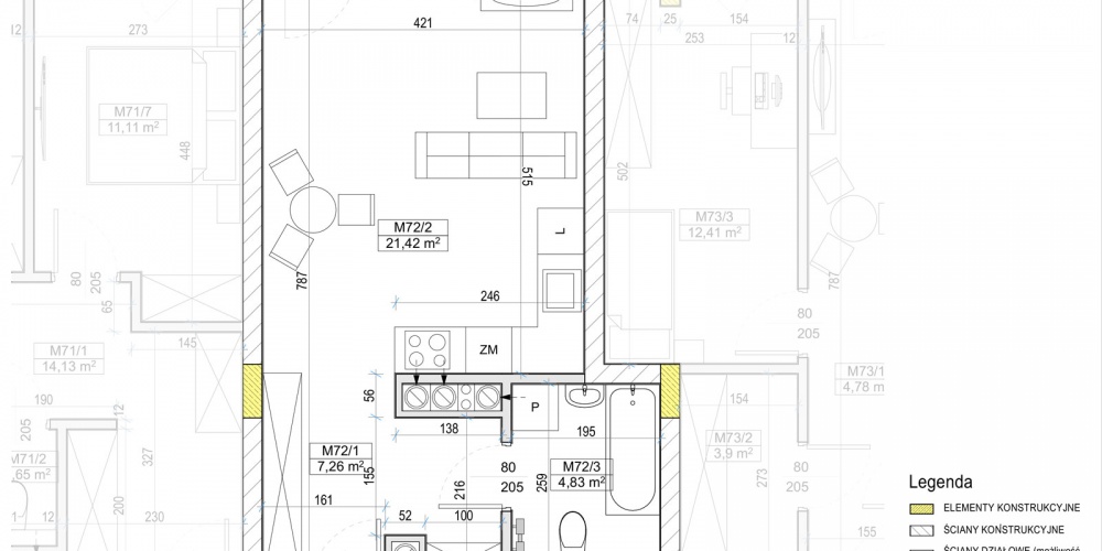
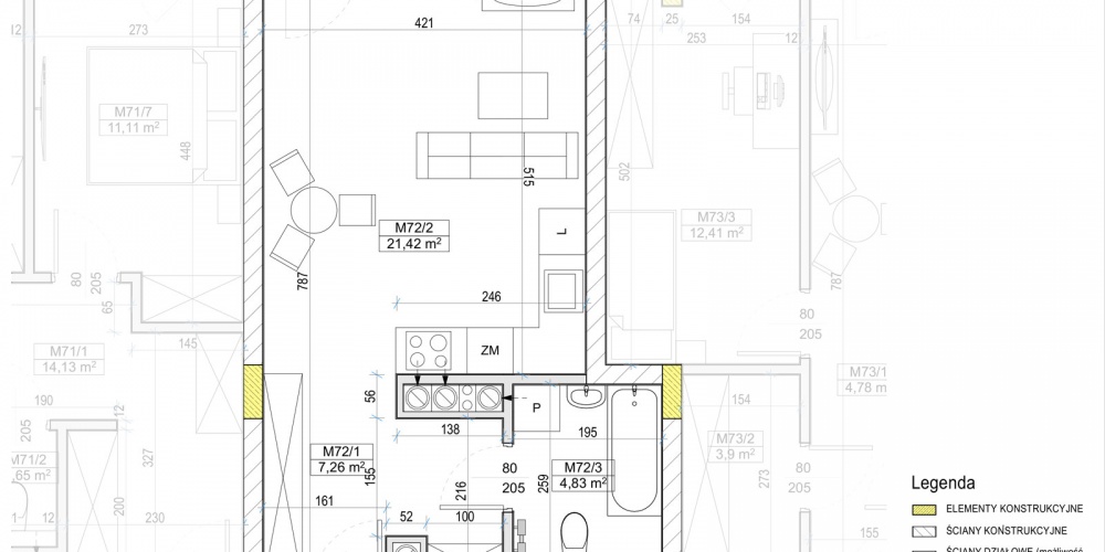
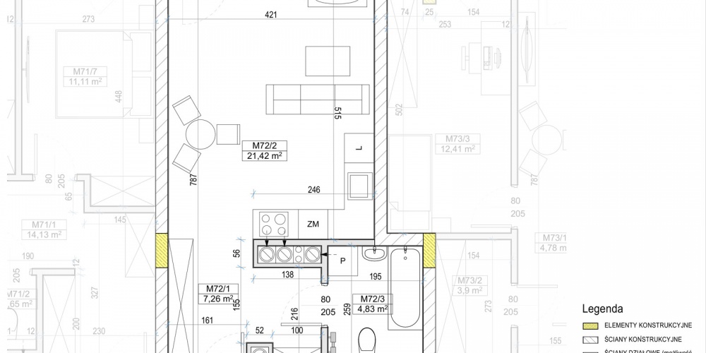
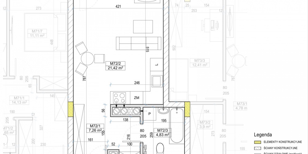
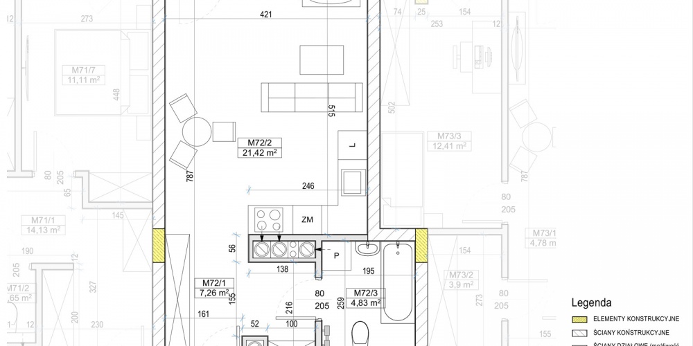
- Komunikacja: 7,26 m²
- ?azienka: 4,83 m²
- Salon + aneks kuchenny: 21,42 m²
- Balkon: 7,36 m²
Nowa inwestycja we Włoszczowie
Więcej szczegółów – zobacz kartę

Zapytaj o mieszkanie
