Opis
Więcej szczegółów – zobacz kartę

Zapytaj o mieszkanie
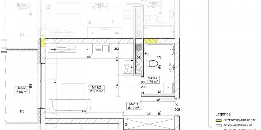
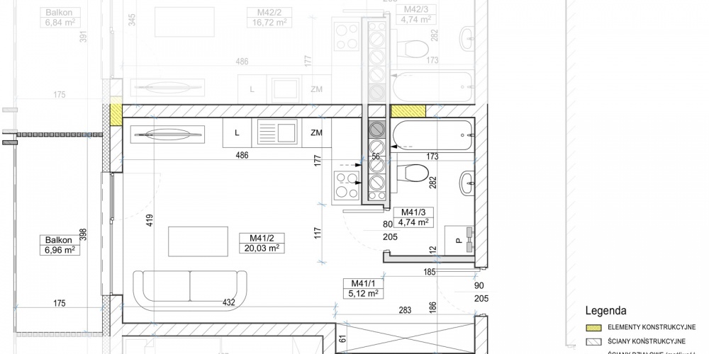
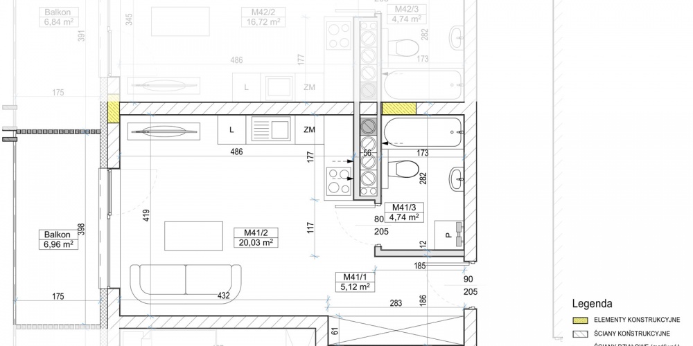
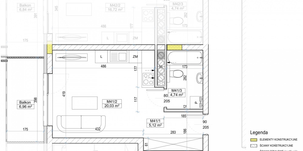
- Cena całkowita: 286 944,00 zł
- Cena za m²: 9600 zł
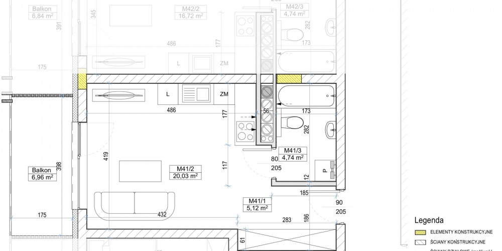
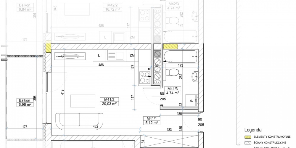
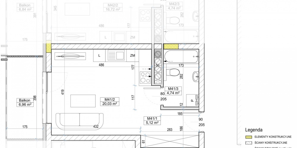
- Komunikacja: 5,12 m²
- ?azienka: 4,74 m²
- Salon + aneks kuchenny: 20,03 m²
- Balkon: 6,96 m²
Nowa inwestycja we Włoszczowie
Więcej szczegółów – zobacz kartę

Zapytaj o mieszkanie
