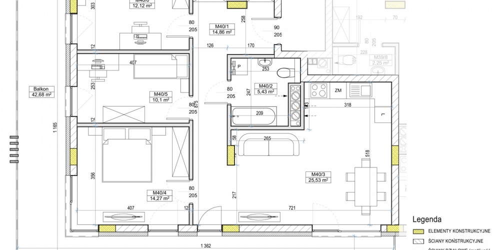
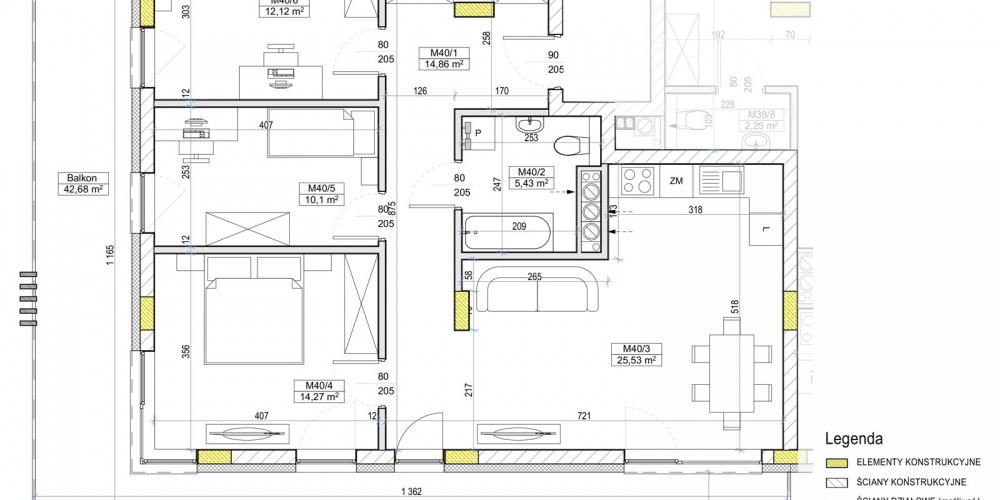
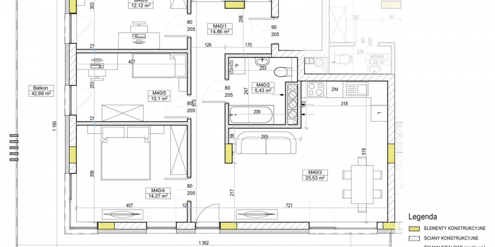
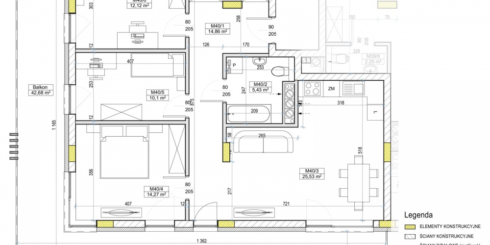
Opis
Więcej szczegółów – zobacz kartę
- Komunikacja: 14,86 m²
- ?azienka: 5,43 m²
- Salon + aneks kuchenny: 25,53 m²
- Sypialnia: 14,27 m²
- Sypialnia: 10,10 m²
- Sypialnia: 12,12 m²
- Balkon: 42,68
Nowa inwestycja we Włoszczowie
Więcej szczegółów – zobacz kartę
