Opis
Więcej szczegółów – zobacz kartę

Zapytaj o mieszkanie
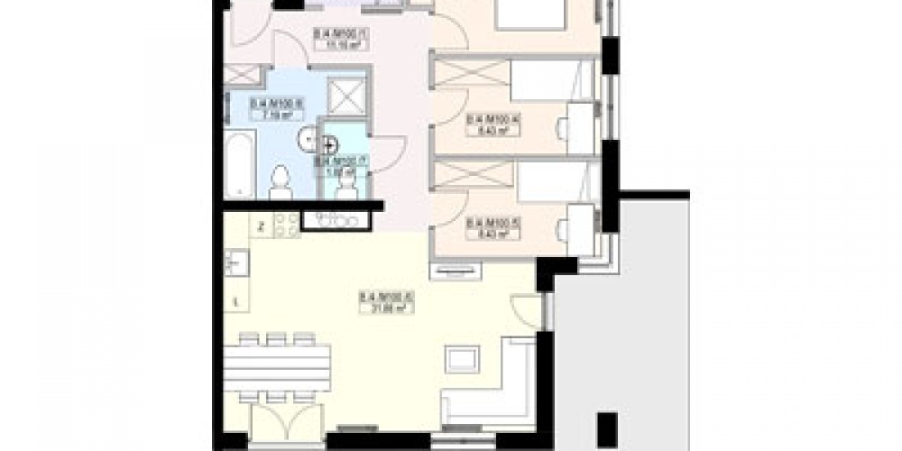
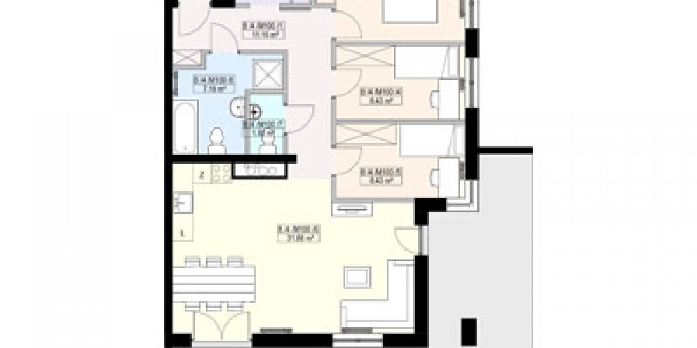
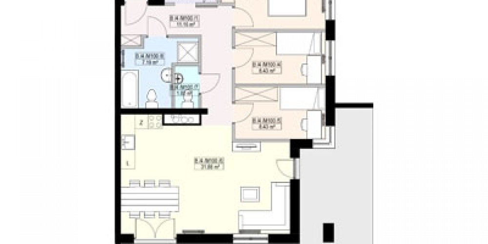
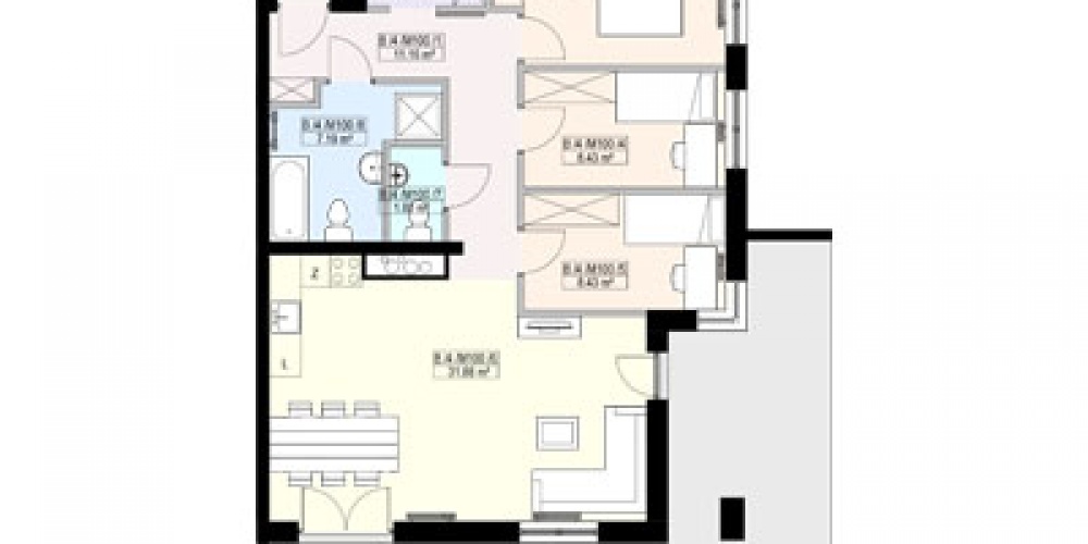
- Cena całkowita: 3,11 m²
- Komunikacja: 11,16 m²
- ?azienka: 7,19 m²
- Salon + aneks kuchenny: 31,88 m²
- Pokój: 10,62 m²
- Pokój: 8,43 m²
- Pokój: 8,43 m²
- WC: 1,80 m²
Nowa inwestycja we Włoszczowie
Więcej szczegółów – zobacz kartę

Zapytaj o mieszkanie
