Opis
Więcej szczegółów – zobacz kartę

Zapytaj o mieszkanie
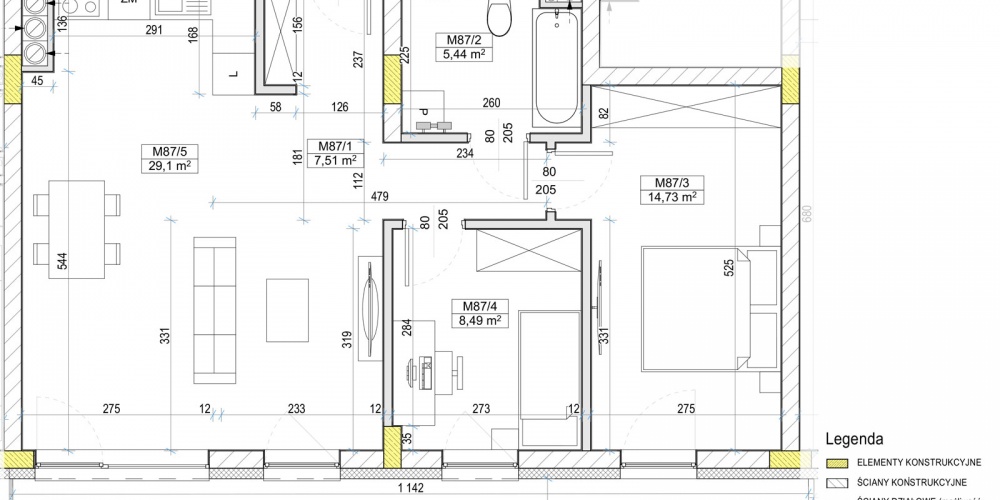
- Cena całkowita: 620 065,00 zł
- Cena za m²: 9500 zł
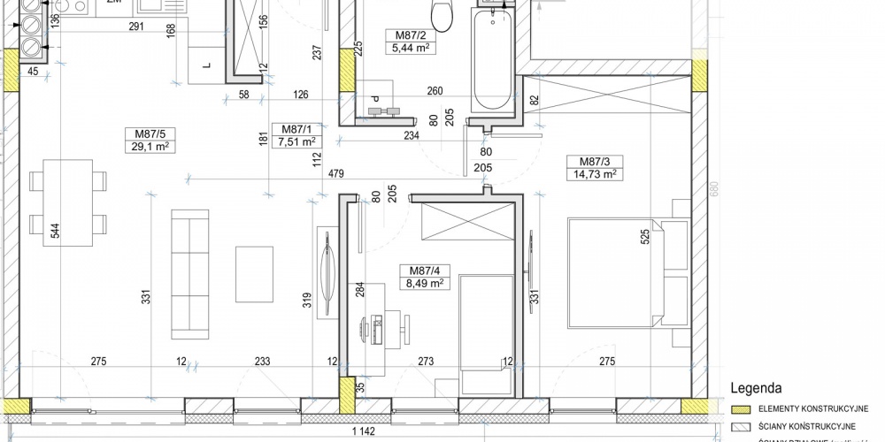
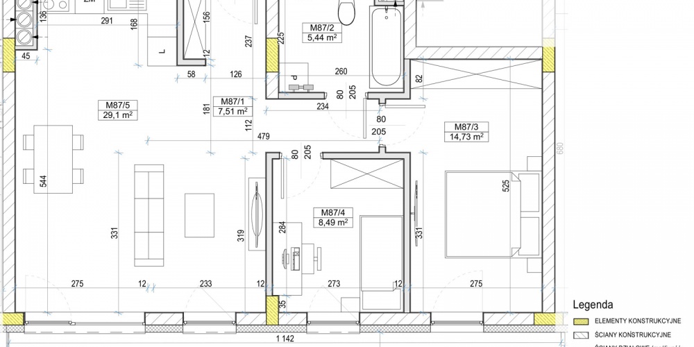
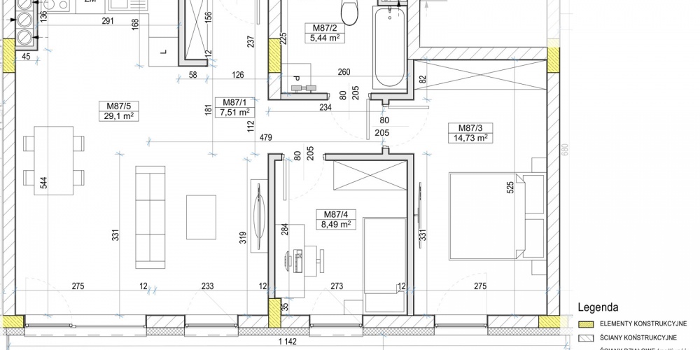
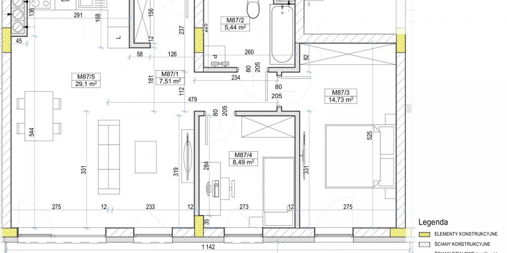
- Komunikacja: 7,51 m²
- ?azienka: 5,44 m²
- Salon + aneks kuchenny: 29,10 m²
- Sypialnia: 14,73 m²
- Sypialnia: 8,49 m²
- Balkon: 18,05 m²
Nowa inwestycja we Włoszczowie
Więcej szczegółów – zobacz kartę

Zapytaj o mieszkanie
