Opis
Więcej szczegółów – zobacz kartę

Zapytaj o mieszkanie
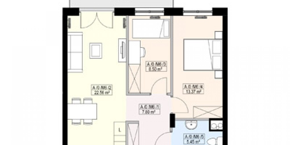
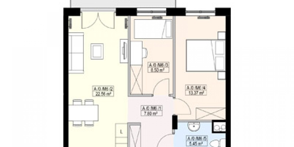
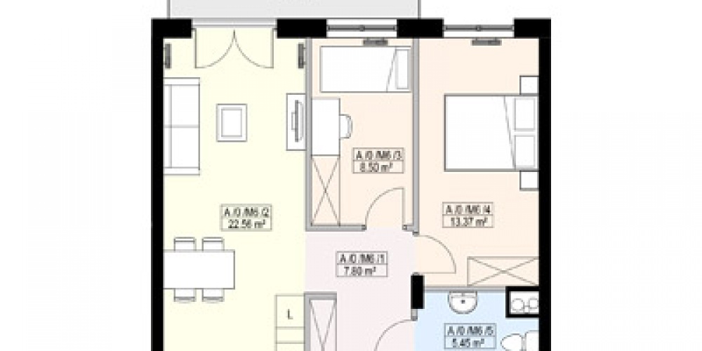
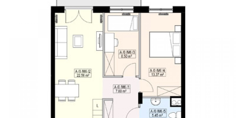
- Cena całkowita: 267 612,00 zł
- Cena za m²: 8700 zł
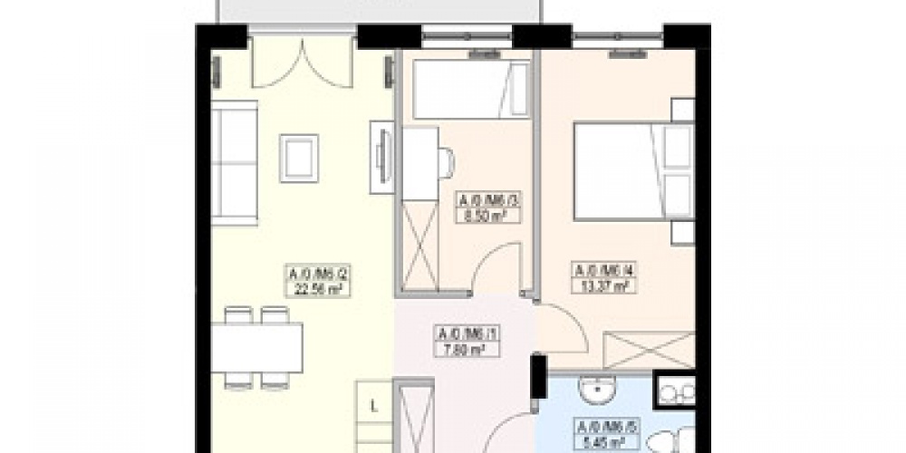
- Komunikacja: 7,74 m²
- ?azienka: 5,48 m²
- Salon + aneks kuchenny: 22,56 m²
- Pokój: 8,56 m²
- Pokój: 13,39 m²
Nowa inwestycja we Włoszczowie
Więcej szczegółów – zobacz kartę

Zapytaj o mieszkanie
