Opis
Więcej szczegółów – zobacz kartę

Zapytaj o mieszkanie
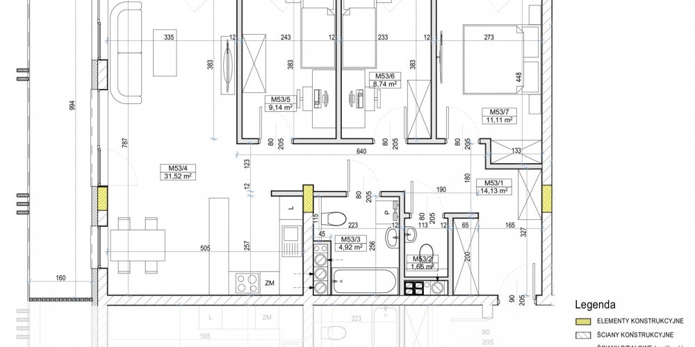
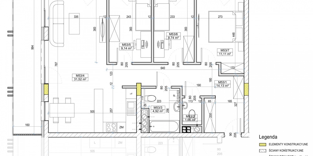
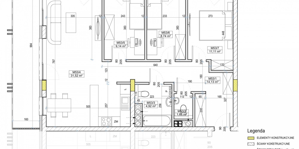
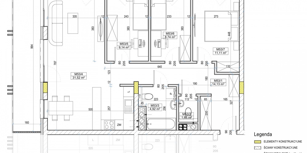
- Cena całkowita: 674 043,00 zł
- Cena za m²: 8300 zł
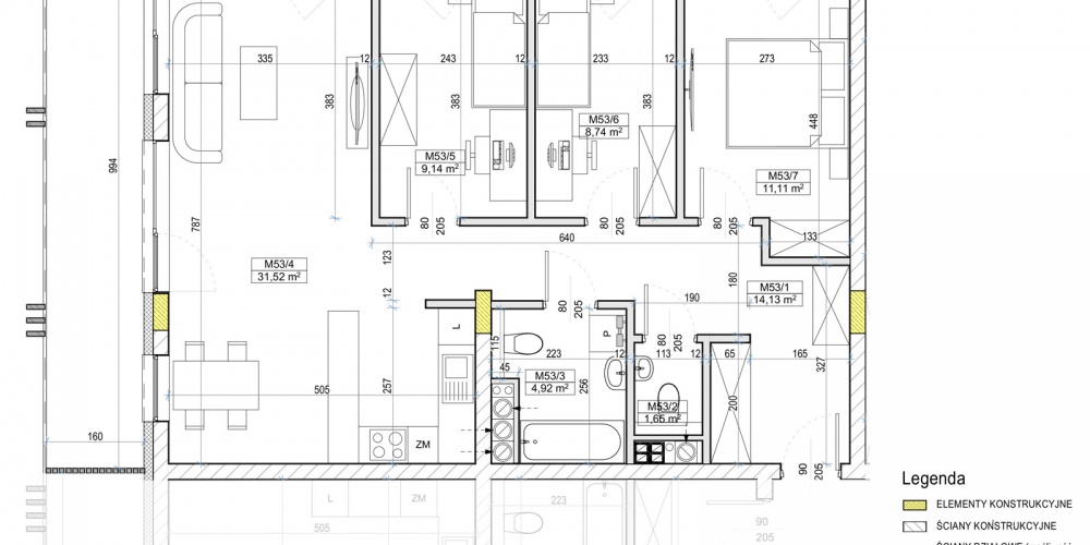
- Komunikacja: 14,13 m²
- ?azienka: 4,92 m²
- Salon + aneks kuchenny: 31,52 m²
- Sypialnia: 9,14 m²
- Sypialnia: 8,74 m²
- Sypialnia: 11,11 m²
- Balkon: 25,02 m²
- WC: 1,65 m²

