Opis
Więcej szczegółów – zobacz kartę

Zapytaj o mieszkanie
- Cena całkowita: 653 205,00 zł
- Cena za m²: 10500 zł
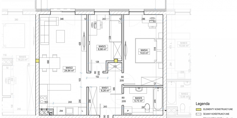
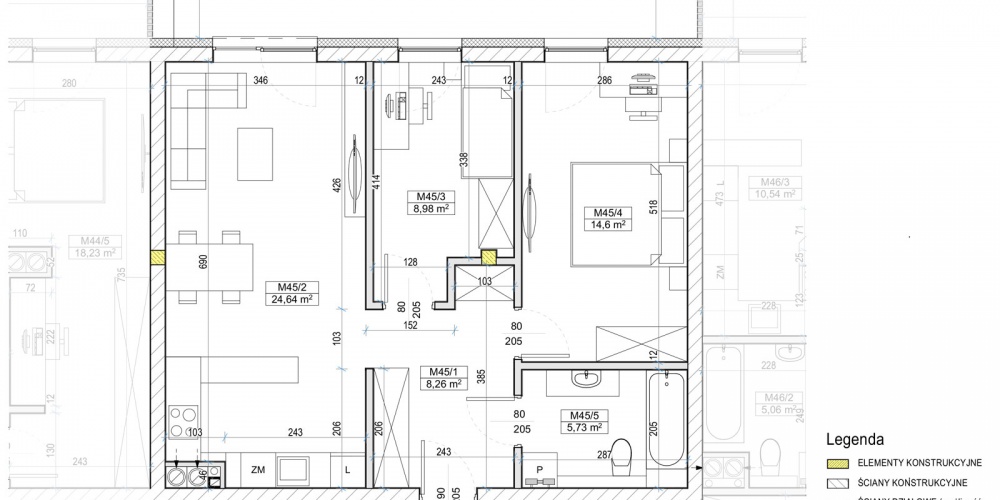
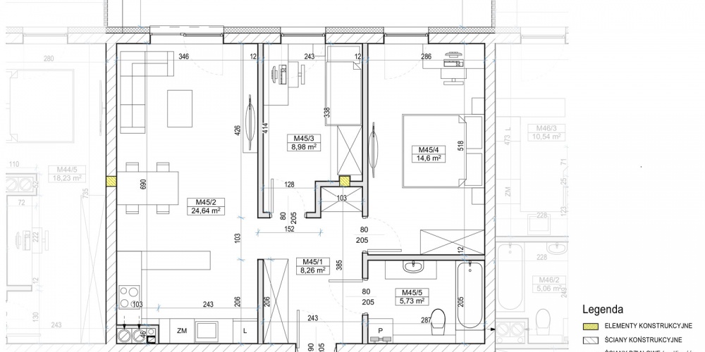
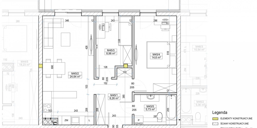
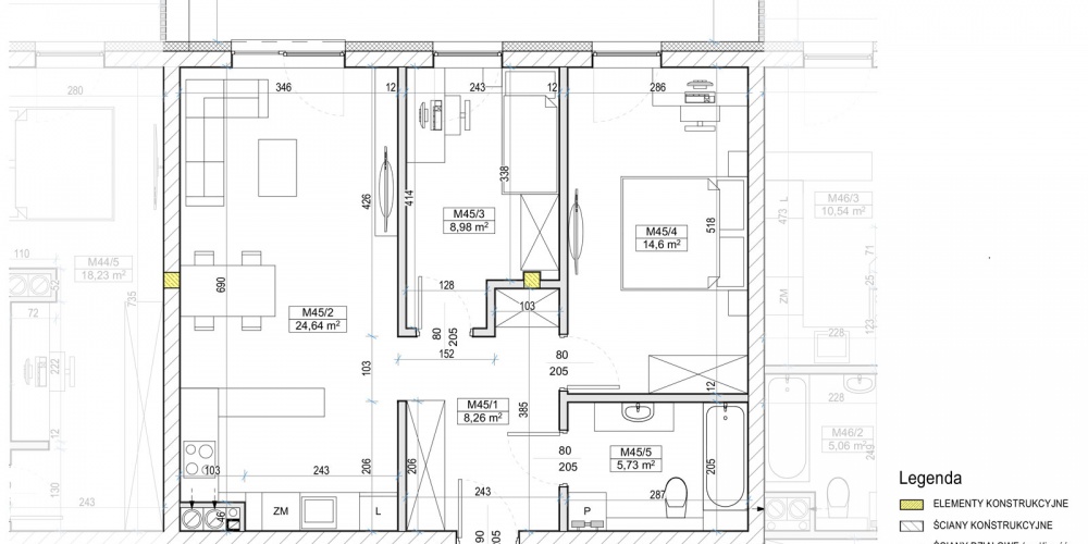
- Komunikacja: 8,26 m²
- ?azienka: 5,73 m²
- Salon + aneks kuchenny: 24,64 m²
- Sypialnia: 14,60 m²
- Pomieszczenie gospodarcze: 28,52 m²
- Pokój: 8,98 m²

