Opis
Więcej szczegółów – zobacz kartę

Zapytaj o mieszkanie
- Cena całkowita: 266 021,00 zł
- Cena za m²: 8900 zł
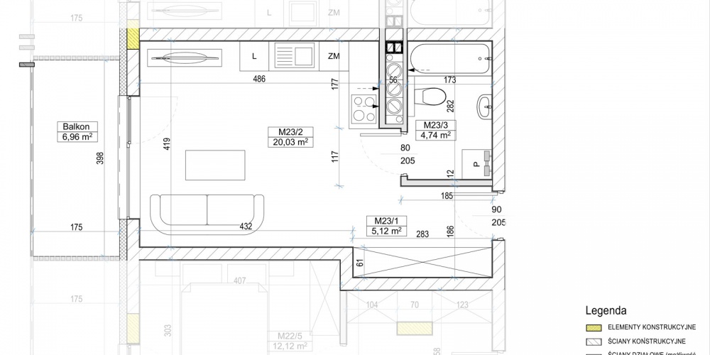
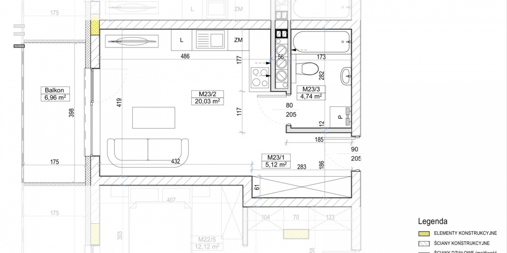
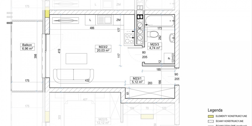
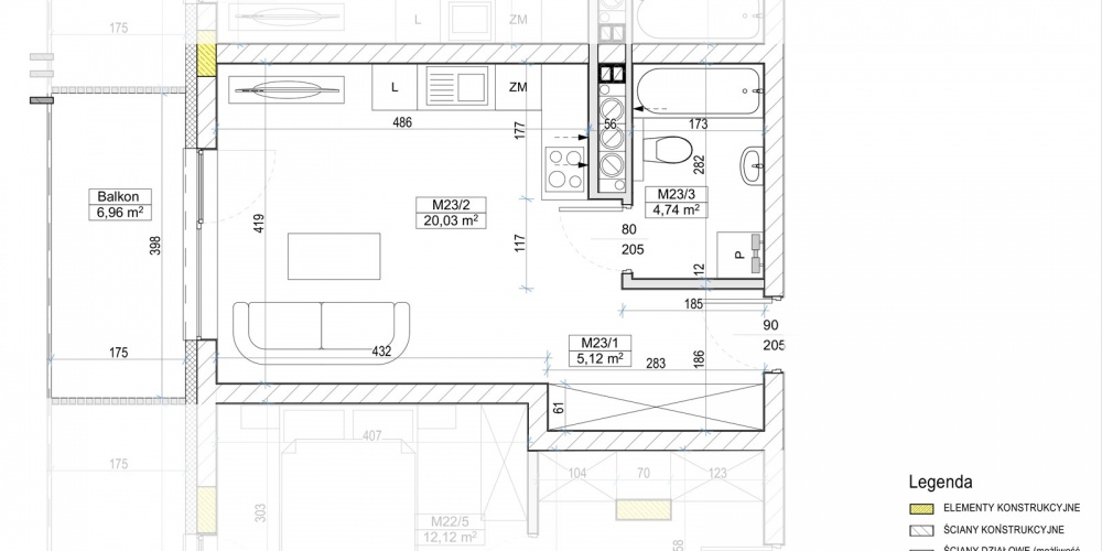
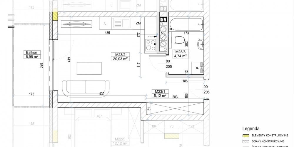
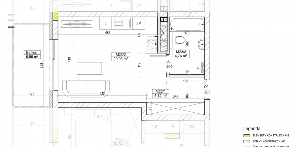
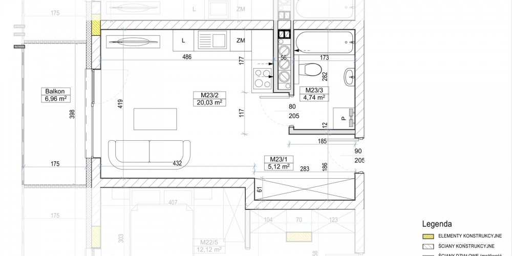
- Komunikacja: 5,12 m²
- ?azienka: 4,74 m²
- Salon + aneks kuchenny: 20,03 m²
Nowa inwestycja we Włoszczowie
Więcej szczegółów – zobacz kartę

Zapytaj o mieszkanie
