Opis
Więcej szczegółów – zobacz kartę

Zapytaj o mieszkanie
- Cena całkowita: 555 388,00 zł
- Cena za m²: 8600 zł
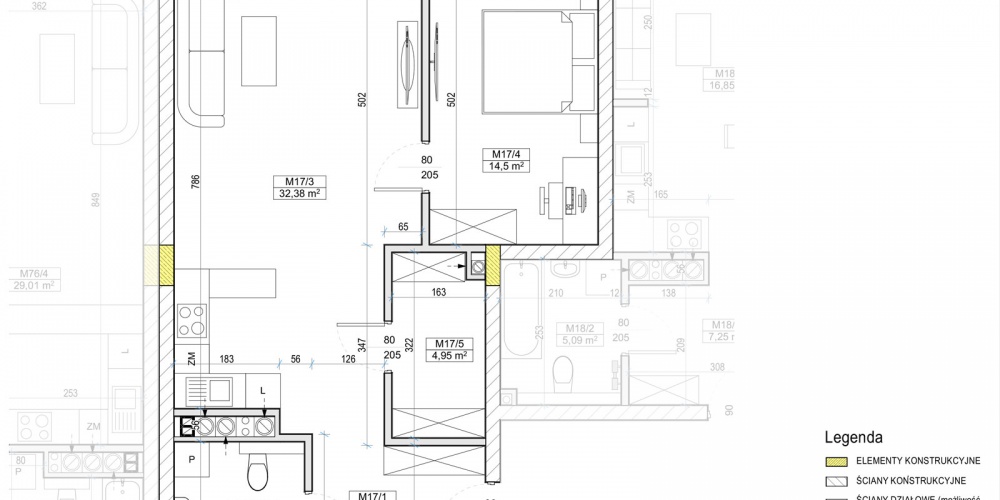
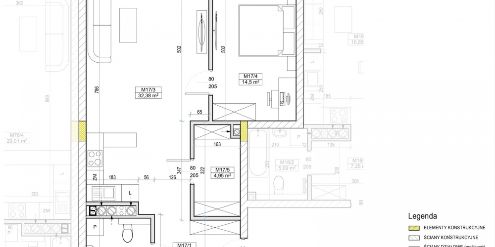
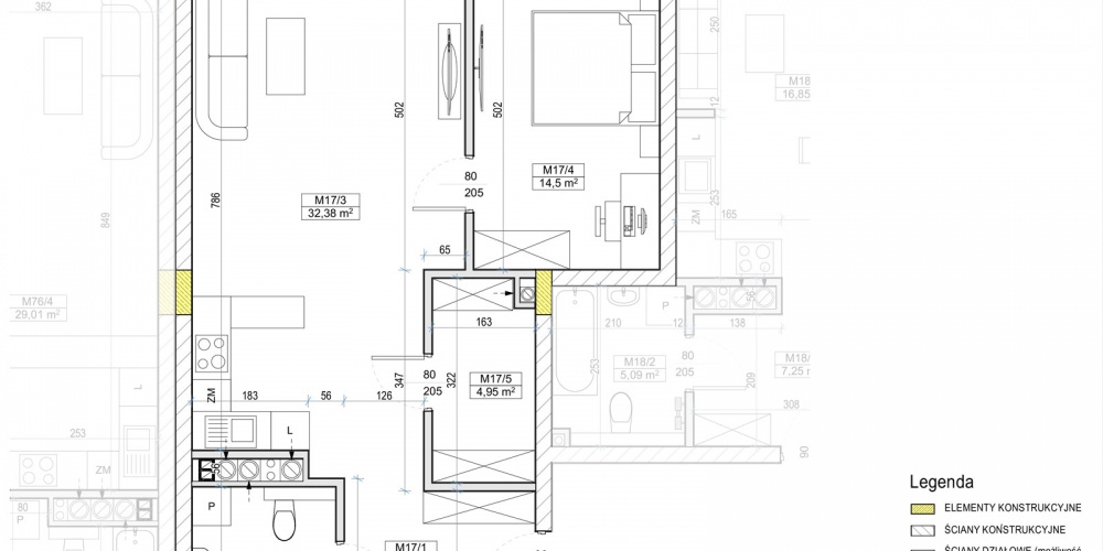
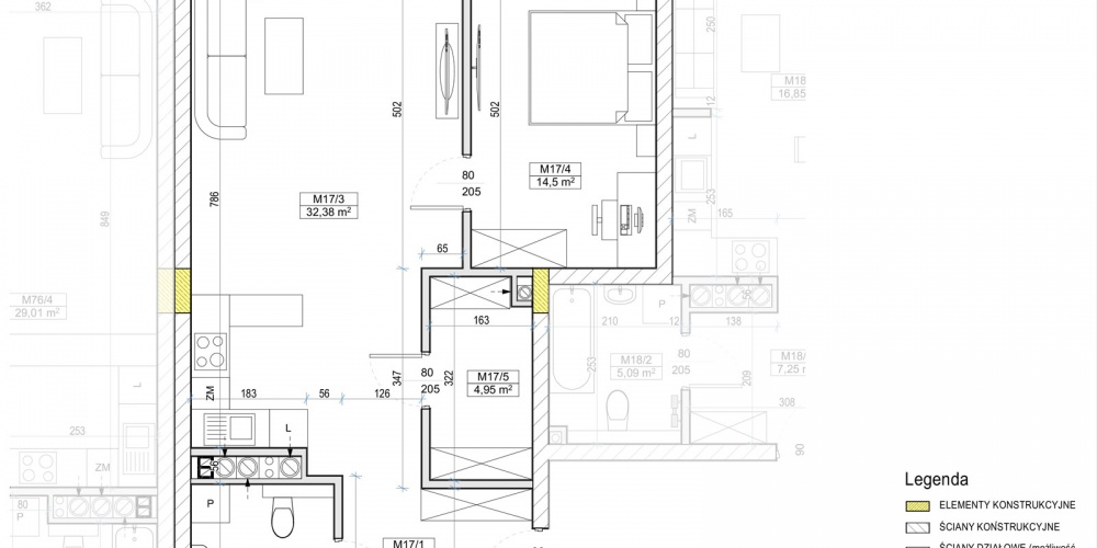
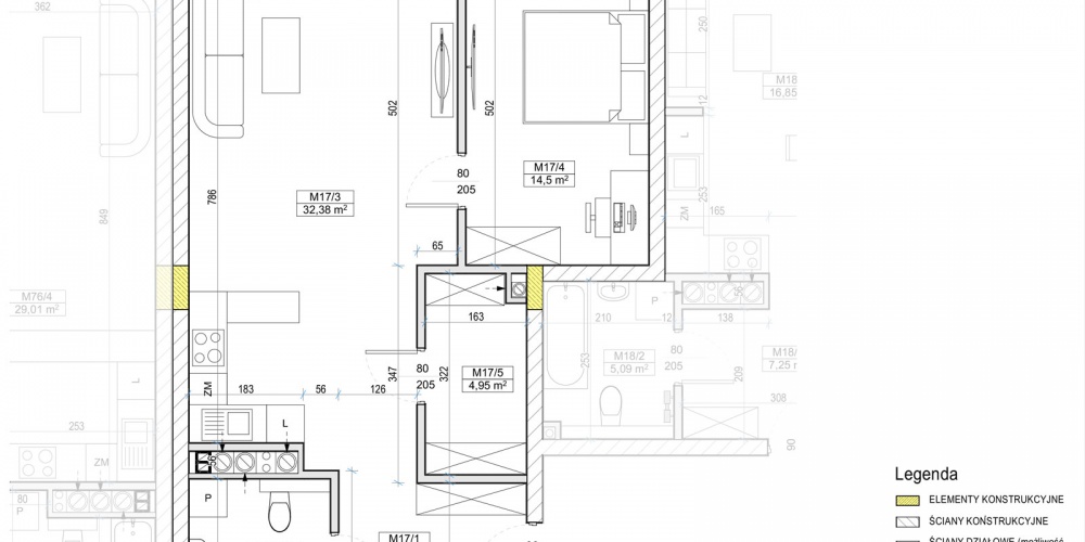
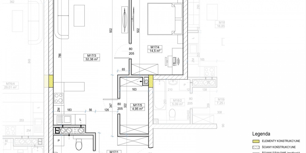
- Komunikacja: 7,72 m²
- ?azienka: 5,75 m²
- Salon + aneks kuchenny: 32,38 m²
- Sypialnia: 14,50 m²
- Pomieszczenie gospodarcze: 4,95 m²
- Balkon: 12,08 m²

